Наверх
Отдел продаж
С 8 до 16:45 (Мск)
Качественные
полиэтиленовые трубы в РФ и СНГ
+7 (800) 201-01-79
С 8 до 16:45 (Мск)

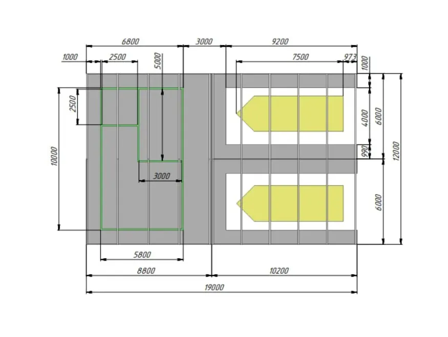
Понтоны из полимерных труб, по чертежам заказчика в Новосибирске

Гарантия 5 лет
50 лет срок службы
В наличии на складе
Описание товара
Характеристики
Документы
Способы оплаты

Надежные плавучие конструкции из ПНД и ПП

Понтон из полимерных труб — это современное решение для строительства причалов, пирсов и плавучих платформ. Конструкция изготавливается на основе гладких труб ПНД (полиэтилен низкого давления) и гофрированных труб ПП (полипропилен), что обеспечивает высокую плавучесть, устойчивость к коррозии и длительный срок эксплуатации.

Полимерные понтоны не подвержены ржавчине, не требуют сложного обслуживания и подходят для эксплуатации в пресной и морской воде.

Из чего изготавливаются понтоны

Понтон из гладких труб ПНД

ПНД-трубы обладают высокой прочностью и герметичностью. За счет закрытого объема обеспечивается стабильная плавучесть и расчетная грузоподъемность.

Преимущества ПНД понтонов:

  • 100% устойчивость к коррозии;
  • долговечность (срок службы 25+ лет);
  • устойчивость к ультрафиолету;
  • высокая механическая прочность;
  • возможность изготовления под требуемую нагрузку.

Подходят для строительства причалов, рабочих платформ, технологических площадок и понтонных переправ.

Понтон из гофрированных труб ПП (полипропилен)

Гофрированные полипропиленовые трубы отличаются высокой кольцевой жесткостью и малым весом. Конструкция обеспечивает надежность при динамических нагрузках и колебаниях уровня воды.

Преимущества ПП понтонов:

  • высокая жесткость конструкции;
  • устойчивость к агрессивной среде;
  • малый собственный вес;
  • простота транспортировки и монтажа;
  • экономичность решения.

Оптимальны для частных причалов, плавучих террас, купальных зон и временных сооружений.

Понтонные конструкции из ПНД и ПП используются для:

  • строительства причалов и пирсов;
  • организации яхтенных стоянок;
  • создания плавучих платформ;
  • обустройства зон отдыха на воде;
  • временных переправ;
  • технологических площадок на водоемах.

Преимущества полимерных понтонов:

  • отсутствие коррозии;
  • устойчивость к влаге и химическим воздействиям;
  • длительный срок службы;
  • минимальное обслуживание;
  • модульность и масштабируемость;
  • быстрый монтаж.

Купить понтон из ПНД и ПП труб

Мы производим полимерные понтоны по стандартным и индивидуальным размерам.

Выполняем расчет грузоподъемности, подбор диаметра труб и проектирование под конкретные условия эксплуатации.

Оставьте заявку — подберем оптимальное решение для вашего объекта и подготовим коммерческое предложение Заказать.

Характеристики:

Модель Понтоны из полимерных труб
Материал ПЭ

Оплата производится по реквизитам компании, по ранее выставленному счету, в адрес Покупателя

Реквизиты:

ОБЩЕСТВО С ОГРАНИЧЕННОЙ ОТВЕТСТВЕННОСТЬЮ "ТД ПОЛИМЕР ЛИМИТЕД"

ИНН 1655353721

КПП 165501001

420111, Татарстан Респ, г Казань ул Пушкина, д. 16, помещ. 10,

тел.: 5123030

Доставка в г. Новосибирск
Цена товара:
По запросу

Всегда соблюдаем сроки производства и поставки
18 лет работы без единой рекламации
6 современных экструзионных линий
Имеем дилеров по РФ
Гарантия на всю продукцию 10 лет
Доставка своим транспортом на Ваш объект
Астраханская Область
Астрахань
Башкортостан Республика
Уфа
Волгоградская Область
Волгоград
Краснодарский Край
Краснодар
Ленинградская Область
Санкт-Петербург
Московская Область
Москва
Нижегородская Область
Нижний Новгород
Новосибирская Область
Новосибирск
Омская Область
Омск
Пензенская Область
Пенза
Ростовская Область
Ростов-на-Дону
Самарская Область
СамараТольятти
Саратовская Область
Саратов
Свердловская Область
Екатеринбург
Татарстан Республика
Казань
Удмуртская Республика
Ижевск
Ульяновская Область
Ульяновск
Челябинская Область
Челябинск